家从不是追逐某种潮流
而是还原出居住者的生活肖像
个性与日常,当下与未来
法式风与烟火气在此共创
成就出大宅的独特气质


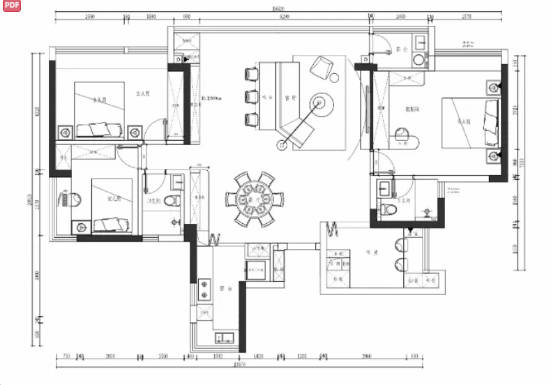
拆除公区隔断,将客餐厅打开突破物理局限,令空间舒展开来;
卧室简化结构,贴合使用者需求,成为可依赖的居住空间;
通过个性化的处理,将法式风格精妙表达。


二合一的气度+全然开放的格局,令客厅成为家的心。法式元素经过精炼,叠加细致涂色,美的意识缓缓流动,带来无尽之意。
装饰通过色彩与材质的衔接过渡,让视线自然流动,形成空间渐进的层次,既不仓促也不割裂。


茶几的精致与沙发的松弛质感互补,深邃黑色与浅色空间碰撞,工笔一般的手法赋予这方大宅精雕细琢的优美。
纱帘肌理迎着光影变化,带给空间有关时光流淌的情绪。

重的一端需要轻来平衡,电视墙从块体美学转为线条艺术。或直或弯的线条,延伸回环,收放自如,发掘出属于结构的美。

餐厅沿袭客厅的规律节奏,占据着空间另一端,为业主构成一种生活上的洄游。

散落其中的轻巧绿意、柔软线条,与藤编、玻璃的通透,在静谧中产生共鸣,静定澄明,成为用餐时最美的背景。

厨房位于空间尽头,被法式门轻盈界定。而玻璃的通透又在某种程度上模糊了界限,让空间内外产生隐秘连接。

清淡基底,深色家电,流畅动线……对于生活场景预设得刚刚好,空间此刻呈现出安闲与悠然的氛围。


线条穿插,材质组合,在延续公区设计语言之上,卫浴空间找到独属于自己的美学表达,将狭小劣势转为小而美。

法式的精致古典作为风格锚点,与设计师理性克制手法相得益彰,成就主卧浑然天成的意境。

那些细节上,有关结构、有关器物的雕琢,在功能与审美间觅得一种平衡,混搭出业主当下喜欢的状态,令人心目双悦。

一入儿童房,粉与白的色彩对话变切换至眼前。玩偶、蝴蝶结、绒球化作元素,潜入结构,让物理空间具备了人的气质。

集成的书柜、书桌,简约实用,又带有金属的精致,凝练出有机的美学语言,与小主人的生活产生共鸣。
设计师|叶敬贤
监理|刘伟荣
